Porzione di bifamiliare in vendita

Val Della Torre, Via Pacchiardo
€ 179.000
Prezzo aggiornato
6 locali 6 locali
160 Mq 160 Mq
2 bagni 2 bagni

Porzione di bifamiliare in vendita

Val Della Torre, Via Pacchiardo

Descrizione annuncio

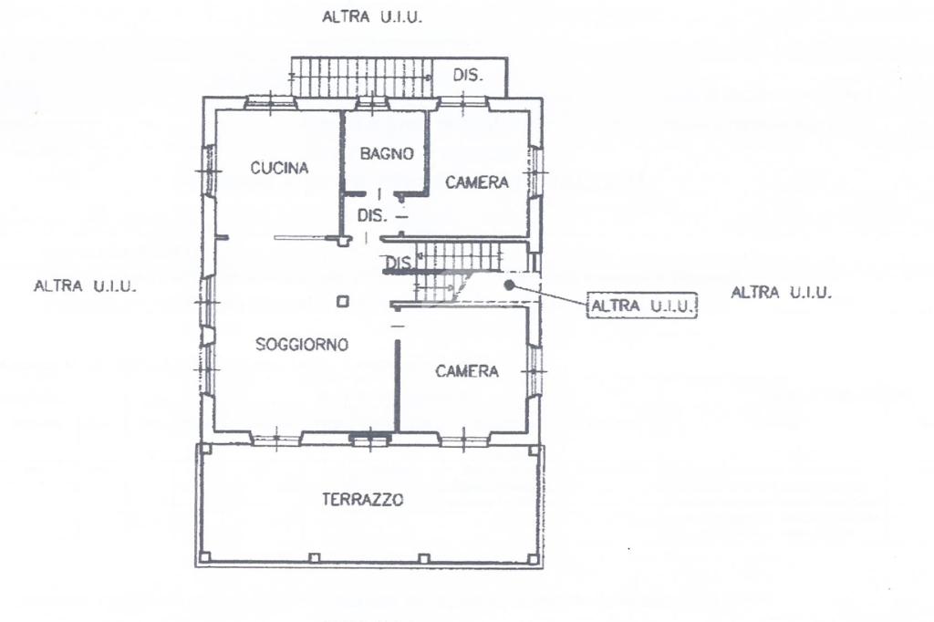
In zona soleggiata porzione di villa bifamiliare di ampia metratura, sviluppata su due livelli abitativi, caratterizzata da ambienti spaziosi e ben organizzati, con la piacevole sensazione di una soluzione indipendente.

L’ingresso introduce a un ampio e luminoso soggiorno doppio, valorizzato dall’accesso a un grande terrazzo con vista aperta e panoramica sull’intera città di Torino.

La zona giorno è completata da una cucina abitabile, mentre sul medesimo piano troviamo una confortevole camera da letto e un bagno finestrato dotato di box doccia. Al piano superiore si sviluppa la zona notte, composta da due camere di generose dimensioni e un secondo servizio. Completa la proprietà un terreno di circa 2.500 mq, arricchito da una comoda area adibita a parcheggio, ideale per chi desidera riservatezza, tranquillità e ampi spazi esterni.

Mostra tutto

Nelle vicinanze

Ricariche auto elettriche Ricariche auto elettriche
Val della Torre Gibbione | EnelX
890 m
Scuole Scuole
Scuole
2,8 Km
Farmacia Farmacia
Farmacia
960 m
Supermercati Supermercati
Carrefour Express
910 m
Bar Bar
Bar
900 m
Bar dei Cacciatori
920 m
Ristoranti Ristoranti
Ristorante dei Cacciatori
910 m
La Ruota
2,2 Km
Mostra tutto

Caratteristiche

Rif.:
61199795
Piano:
Su più livelli di 2
Totale piani:
2
Posti auto:
5
Balconi:
1
Terrazzi:
1
Mostra tutto
Prezzo Prezzo
€ 179.000
Rata mutuo Rata mutuo
€ 850 / mese
Spese annue Spese annue
€ 0
Proponi il tuo prezzoProponi il tuo prezzo

Classe Energetica

E
E
E
E
E
E
E
E
E
EP globale non rinnovabile:
11.78 kW h/m² anno
EP globale rinnovabile:
156.56 kW h/m² anno
EP invernale del fabbricato:
EP estiva del fabbricato:
Anno di costruzione:
1970
Riscaldamento:
Autonomo
Tipo impianto:
A radiatori
Tipo alimentazione:
GPL

Prezzo ridotto di €1 (4%%)

Ti interessa visionare l'immobile?

Fissa un appuntamento  Fissa un appuntamento

Richiedi informazioni

Clicca su Leggi per aprire l'informativa
* Questi campi sono obbligatori

Calcola il tuo mutuo

Semplice e senza impegno
Anticipo

( % )
Mutuo

( % )

pochi semplici passi

inserisci i tuoi dati
Questionario completato
Grazie per aver richiesto un appuntamento senza impegno con un nostro Consulente del Credito e Assicurativo.

Hai inserito correttamente tutti i dati necessari e a breve riceverai una e-mail con un link da convalidare per inviare i tuoi dati.
Affiliato
Immobiliare Givoletto Sas
Via Torino, 4 10040 Givoletto (TO)

Il nostro staff


  • Anthony Molluso
    Affiliato

  • Giuseppe Bologna
    Responsabile

  • Giulia Saracino
    Coordinatrice
Via Torino, 4 10040 Givoletto (TO)
Zona: Givoletto-Val Della Torre-Caselette-La Cassa
Mostra su mappa
Orari: LUN.-VEN. 09.00-12.30/15.00-20.00 SABATO 09.00-12.30/15.00-19.00 DOMENICA CHIUSO
Affiliato
Immobiliare Givoletto Sas
Via Torino, 4 10040 Givoletto (TO)

2026 Tecnocasa Franchising S.p.A. - P. IVA 08365160152 - Via Monte Bianco 60/A 20089 Rozzano (MI). Ogni agenzia ha un proprio titolare ed è autonoma. Privacy policy | Policy utilizzo | Cookie policy