Capannone in affitto

Val Della Torre, Capannone Piu' Appartamento Via Guglielmo Marconi
€ 2.000 / mese
10 locali 10 locali
450 Mq 450 Mq
4 bagni 4 bagni

Capannone in affitto

Val Della Torre, Capannone Piu' Appartamento Via Guglielmo Marconi

Descrizione annuncio

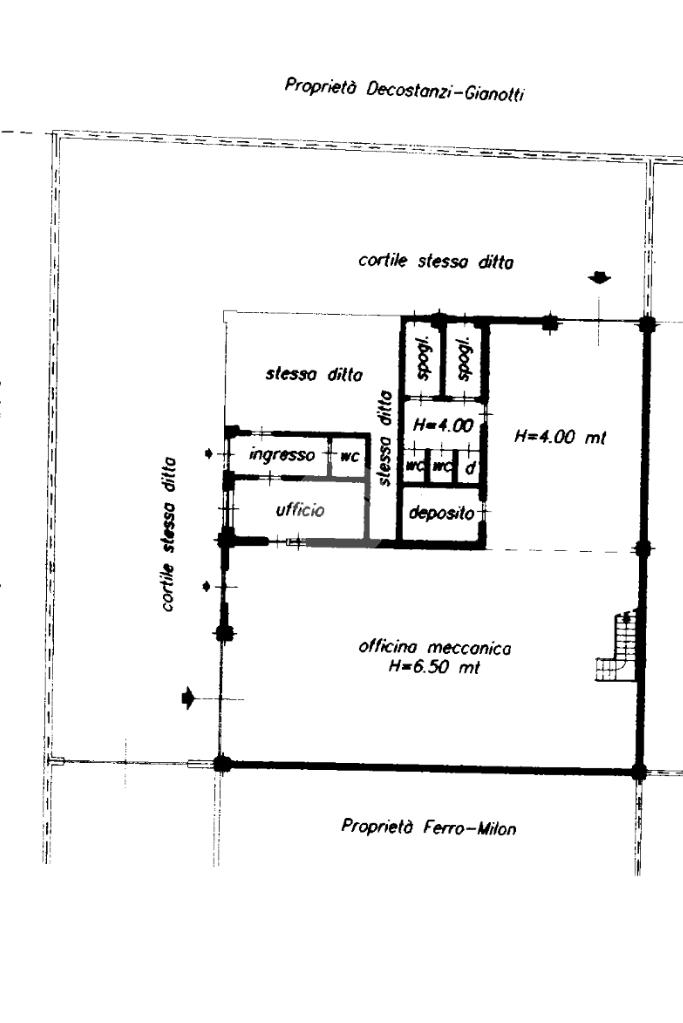
CAPANNONE PIU' APPARTAMENTO

Proponiamo in affitto una soluzione indipendente composta da un capannone di circa 350 mq e da un appartamento di circa 100 mq situato al piano superiore, collegati esclusivamente tramite scala interna, per garantire comodità e riservatezza.

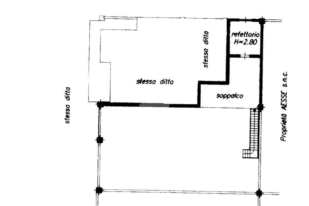
Il capannone, mantenuto in ottime condizioni, è dotato di impianto elettrico con 380V, impianto dell’aria e riscaldamento con robur. Dispone inoltre di soppalco adibito a locale mensa, spogliatoi, due bagni di servizio, uffici climatizzati e un ulteriore locale al piano terra adibito a cucina.

L’ampio cortile privato su tre lati offre grande praticità per carico/scarico e ampi spazi di parcheggio.

L’appartamento, anch’esso in condizioni eccellenti, è composto da ingresso su un luminoso salone con accesso diretto a un grande terrazzo, cucina abitabile, due camere da letto e bagno finestrato. Completano la proprietà due balconi, tende parasole, aria condizionata e sistema di antifurto.

Una soluzione completa, funzionale e subito disponibile, perfetta per chi desidera unire spazio lavorativo e abitazione in un unico contesto ben organizzato.

Mostra tutto

Nelle vicinanze

Ricariche auto elettriche Ricariche auto elettriche
Municipio di Givoletto | EnelX
2,1 Km
Givoletto Via Torino | EnelX
2,6 Km
Scuole Scuole
Scuole
1,1 Km
Scuola Elementare
2,2 Km
Farmacia Farmacia
Farmacia Dottor Gallo
2,1 Km
Supermercati Supermercati
Despar
2,0 Km
Bar Bar
Bellini
2,1 Km
La Caneva de Nino
2,1 Km
Ristoranti Ristoranti
La Coccinellla
1,9 Km
La Vecchia Lira
2,2 Km
Ristorante dei Cacciatori
2,2 Km
La Ruota
2,6 Km
Lo Scacciapensieri
2,7 Km
Mostra tutto

Caratteristiche

Rif.:
61142748
Piano:
Su più livelli di 2
Totale piani:
2
Box:
1
Posti auto:
4
Balconi:
3
Mostra tutto
Prezzo Prezzo
€ 2.000 / mese
Spese annue Spese annue
€ 0

Classe Energetica

D
D
D
D
D
D
D
D
D
EP globale non rinnovabile:
11.78 kW h/m² anno
EP globale rinnovabile:
11.78 kW h/m² anno
EP invernale del fabbricato:
EP estiva del fabbricato:
Anno di costruzione:
2000
Riscaldamento:
Autonomo
Tipo impianto:
A radiatori
Tipo alimentazione:
Metano

Ti interessa visionare l'immobile?

Fissa un appuntamento  Fissa un appuntamento

Richiedi informazioni

* Questi campi sono obbligatori
Affiliato
Immobiliare Givoletto Sas
Via Torino, 4 10040 Givoletto (TO)

Il nostro staff


  • Anthony Molluso
    Affiliato

  • Giuseppe Bologna
    Responsabile

  • Giulia Saracino
    Coordinatrice

  • Ginevra Zoia
    Collaboratrice
Via Torino, 4 10040 Givoletto (TO)
Zona: Givoletto-Val Della Torre-Caselette-La Cassa
Mostra su mappa
Orari: LUN.-VEN. 09.00-12.30/15.00-20.00 SABATO 09.00-12.30/15.00-19.00 DOMENICA CHIUSO
Affiliato
Immobiliare Givoletto Sas
Via Torino, 4 10040 Givoletto (TO)

2025 Tecnocasa Franchising S.p.A. - P. IVA 08365160152 - Via Monte Bianco 60/A 20089 Rozzano (MI). Ogni agenzia ha un proprio titolare ed è autonoma. Privacy policy | Policy utilizzo | Cookie policy