Villa singola in vendita

Givoletto, Via dei Caduti - Forvilla
€ 329.000
10 locali 10 locali
250 Mq 250 Mq
3 bagni 3 bagni

Villa singola in vendita

Givoletto, Via dei Caduti - Forvilla

Descrizione annuncio

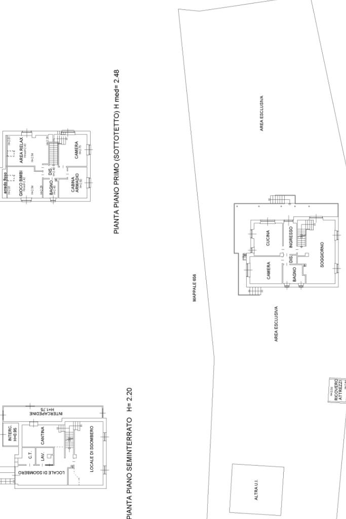
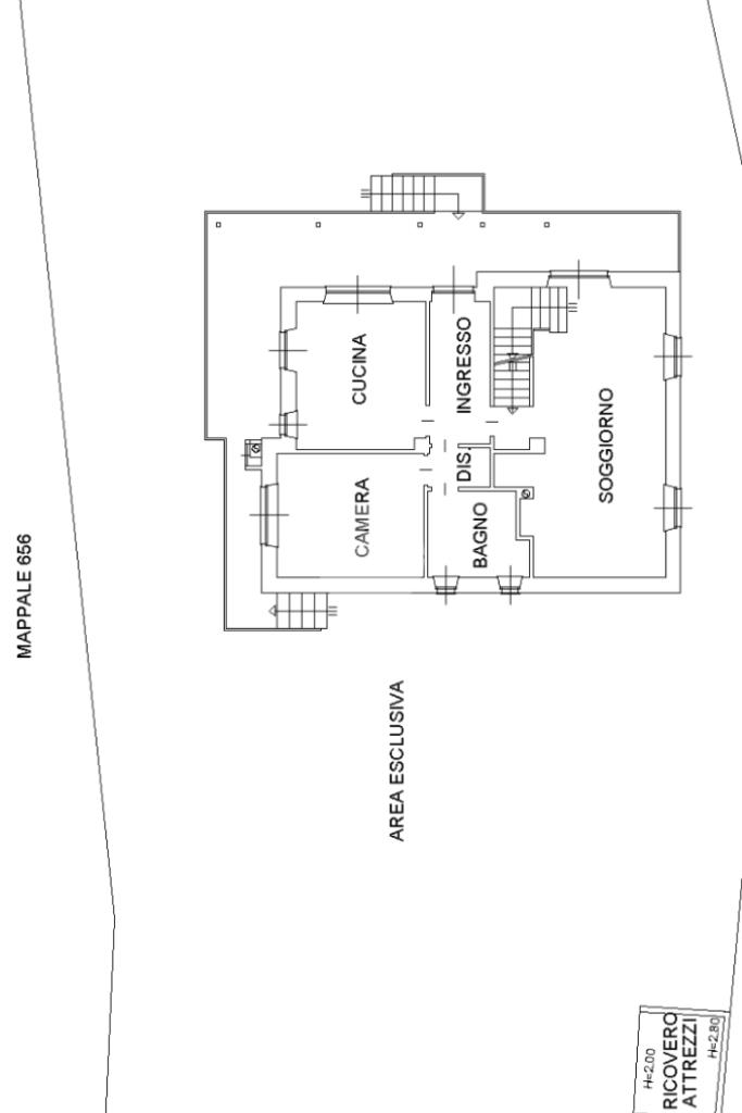
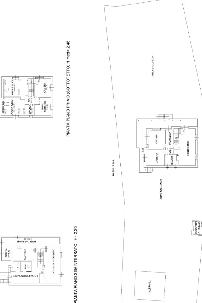
A pochi passi dal centro del paese, villa indipendente ristrutturata nel 2005 e circondata da un ampio giardino privato di circa 1.000 mq.

L’ingresso al piano rialzato, conduce alla zona giorno composta da un salone particolarmente luminoso, la cucina abitabile, la camera da letto ed il bagno con la doccia. Attraverso la scala interna si accede al piano superiore mansardato, dove troviamo le due camere da letto, un ulteriore salone, la seconda cucina abitabile ed il bagno di servizio. Al piano terra, infine, con accesso diretto dal giardino, sono presenti una tavernetta, i locali cantina e la lavanderia. Completano la proprietà un box auto doppio di circa 50 mq, la legnaia e alcuni comodi vani accessori esterni.

La distribuzione degli spazi rende possibile un’agevole suddivisione in due unità abitative, ideale per nuclei familiari distinti o per chi desidera una soluzione bifamiliare.

Mostra tutto

Nelle vicinanze

Trasporto pubblico Trasporto pubblico
La Cassa (P.za 25 Aprile)
La Cassa (P.za 25 Aprile)
2,7 Km
La Cassa (Ribolzi)
La Cassa (Ribolzi)
2,8 Km
Ricariche auto elettriche Ricariche auto elettriche
Municipio di Givoletto | EnelX
480 m
Givoletto Via Torino | EnelX
1,7 Km
Scuole Scuole
Scuola Elementare
690 m
Scuole
2,7 Km
Farmacia Farmacia
Farmacia Dottor Gallo
420 m
Farmacia
2,6 Km
Supermercati Supermercati
Despar
380 m
Bar Bar
Bellini
450 m
Ristoranti Ristoranti
Ristorante dei Cacciatori
380 m
La Coccinellla
540 m
La Vecchia Lira
700 m
Campana
1,9 Km
Il Ritrovo
2,5 Km
Mostra tutto

Caratteristiche

Rif.:
61119057
Piano:
Su più livelli di 2
Totale piani:
2
Box:
2
Posti auto:
4
Balconi:
2
Mostra tutto
Prezzo Prezzo
€ 329.000
Rata mutuo Rata mutuo
€ 1.551 / mese
Spese annue Spese annue
€ 0
Proponi il tuo prezzoProponi il tuo prezzo

Classe Energetica

D
D
D
D
D
D
D
D
D
EP globale non rinnovabile:
0.00 kW h/m² anno
EP globale rinnovabile:
0.00 kW h/m² anno
Anno di costruzione:
1995
Riscaldamento:
Autonomo
Tipo impianto:
A radiatori
Tipo alimentazione:
Metano

Ti interessa visionare l'immobile?

Fissa un appuntamento  Fissa un appuntamento

Richiedi informazioni

Clicca su Leggi per aprire l'informativa
* Questi campi sono obbligatori

Calcola il tuo mutuo

Semplice e senza impegno
Anticipo

( % )
Mutuo

( % )

pochi semplici passi

inserisci i tuoi dati
Questionario completato
Grazie per aver richiesto un appuntamento senza impegno con un nostro Consulente del Credito e Assicurativo.

Hai inserito correttamente tutti i dati necessari e a breve riceverai una e-mail con un link da convalidare per inviare i tuoi dati.
Affiliato
Immobiliare Givoletto Sas
Via Torino, 4 10040 Givoletto (TO)

Il nostro staff


  • Anthony Molluso
    Affiliato

  • Giuseppe Bologna
    Responsabile

  • Giulia Saracino
    Coordinatrice
Via Torino, 4 10040 Givoletto (TO)
Zona: Givoletto-Val Della Torre-Caselette-La Cassa
Mostra su mappa
Orari: LUN.-VEN. 09.00-12.30/15.00-20.00 SABATO 09.00-12.30/15.00-19.00 DOMENICA CHIUSO
Affiliato
Immobiliare Givoletto Sas
Via Torino, 4 10040 Givoletto (TO)

2026 Tecnocasa Franchising S.p.A. - P. IVA 08365160152 - Via Monte Bianco 60/A 20089 Rozzano (MI). Ogni agenzia ha un proprio titolare ed è autonoma. Privacy policy | Policy utilizzo | Cookie policy