Villa singola in vendita

Givoletto, Via Luigi Einaudi
€ 539.000
Prezzo aggiornato
8 locali 8 locali
200 Mq 200 Mq
3 bagni 3 bagni

Villa singola in vendita

Givoletto, Via Luigi Einaudi

Descrizione annuncio

In centro paese, splendida villa indipendente, collocata in una posizione strategica che unisce la comodità di tutti i servizi a pochi passi.

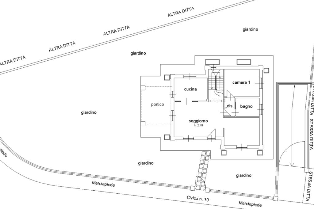
L’abitazione si sviluppa su più livelli: al piano terra si accede da un ingresso su un ampio e luminoso salone doppio, seguito da una cucina abitabile, una camera da letto matrimoniale ed un bagno con il box doccia.

Al piano superiore troviamo due camere, un accogliente salottino, un secondo bagno e un terrazzo con una splendida vista panoramica.

Il piano seminterrato offre una spaziosa tavernetta, un ulteriore bagno, lavanderia, cantina e un box auto triplo.

La villa si presenta in ottime condizioni, con rifiniture di pregio, ideale per chi cerca una soluzione elegante e indipendente nel cuore del paese, completa di spazi esterni privati dove godersi momenti di relax.

Mostra tutto

Nelle vicinanze

Ricariche auto elettriche Ricariche auto elettriche
Municipio di Givoletto | EnelX
220 m
Givoletto Via Torino | EnelX
2,3 Km
Scuole Scuole
Scuola Elementare
180 m
Scuole
2,9 Km
Farmacia Farmacia
Farmacia Dottor Gallo
280 m
Farmacia
2,9 Km
Supermercati Supermercati
Despar
380 m
Bar Bar
Bellini
260 m
Ristoranti Ristoranti
La Vecchia Lira
110 m
Ristorante dei Cacciatori
360 m
La Coccinellla
980 m
Campana
2,5 Km
Il Ritrovo
2,9 Km
Mostra tutto

Caratteristiche

Rif.:
61115688
Piano:
3 di 2 (Piano su più livelli)
Box:
1
Posti auto:
1
Balconi:
1
Terrazzi:
2
Mostra tutto
Prezzo Prezzo
€ 539.000
Rata mutuo Rata mutuo
€ 2.544 / mese
Spese annue Spese annue
€ 0
Proponi il tuo prezzoProponi il tuo prezzo

Classe Energetica

C
C
C
C
C
C
C
C
C
EP globale non rinnovabile:
105.06 kW h/m² anno
EP globale rinnovabile:
105.06 kW h/m² anno
EP invernale del fabbricato:
EP estiva del fabbricato:
Anno di costruzione:
2007
Riscaldamento:
Autonomo
Tipo impianto:
A radiatori
Tipo alimentazione:
Metano

Prezzo ridotto di €1 (2%%)

Ti interessa visionare l'immobile?

Fissa un appuntamento  Fissa un appuntamento

Richiedi informazioni

Clicca su Leggi per aprire l'informativa
* Questi campi sono obbligatori

Calcola il tuo mutuo

Semplice e senza impegno
Anticipo

( % )
Mutuo

( % )

pochi semplici passi

inserisci i tuoi dati
Questionario completato
Grazie per aver richiesto un appuntamento senza impegno con un nostro Consulente del Credito e Assicurativo.

Hai inserito correttamente tutti i dati necessari e a breve riceverai una e-mail con un link da convalidare per inviare i tuoi dati.
Affiliato
Immobiliare Givoletto Sas
Via Torino, 4 10040 Givoletto (TO)

Il nostro staff


  • Anthony Molluso
    Affiliato

  • Giuseppe Bologna
    Responsabile

  • Giulia Saracino
    Coordinatrice

  • Ginevra Zoia
    Collaboratrice
Via Torino, 4 10040 Givoletto (TO)
Zona: Givoletto-Val Della Torre-Caselette-La Cassa
Mostra su mappa
Orari: LUN.-VEN. 09.00-12.30/15.00-20.00 SABATO 09.00-12.30/15.00-19.00 DOMENICA CHIUSO
Affiliato
Immobiliare Givoletto Sas
Via Torino, 4 10040 Givoletto (TO)

2025 Tecnocasa Franchising S.p.A. - P. IVA 08365160152 - Via Monte Bianco 60/A 20089 Rozzano (MI). Ogni agenzia ha un proprio titolare ed è autonoma. Privacy policy | Policy utilizzo | Cookie policy