6 locali in vendita

Givoletto, Via Sandro Pertini
€ 339.000
Prezzo aggiornato
6 locali 6 locali
200 Mq 200 Mq
2 bagni 2 bagni

6 locali in vendita

Givoletto, Via Sandro Pertini

Descrizione annuncio

Nel pieno centro del paese di Givoletto, comodissimo a tutti i principali servizi, proponiamo in vendita un appartamento di recente costruzione situato in una piccola palazzina.

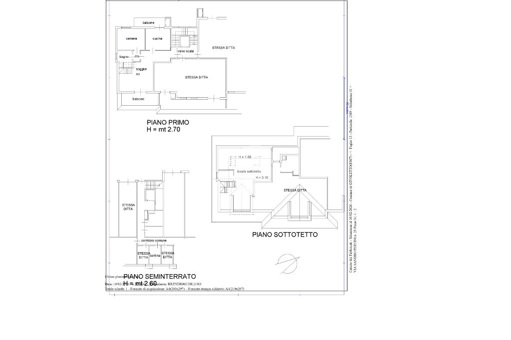
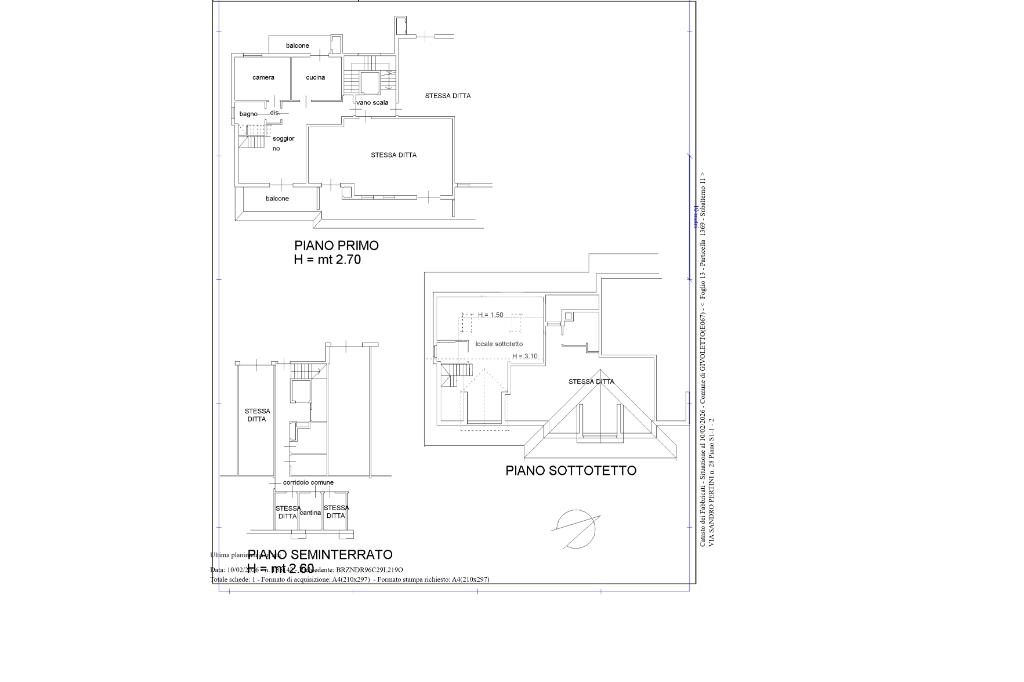
L’immobile si sviluppa su due livelli ed è caratterizzato da spazi ampi e luminosi.

Al piano terra l’ingresso si apre su un disimpegno centrale che conduce alla cucina abitabile, al salone di generosa metratura, molto luminoso, alla comoda camera da letto e al bagno. Dal piano si accede a tre terrazzi di ottima metratura, ideali per momenti di relax all’aperto e impreziositi da una splendida vista panoramica su tutta la città di Torino.

Al piano superiore mansardato, valorizzato dal tetto in legno, troviamo un ampio open space facilmente divisibile, con la possibilità di realizzare due o tre camere da letto oltre al bagno.

Completa la soluzione un box auto doppio. Ottima opportunità per chi cerca una casa moderna, spaziosa e panoramica nel cuore del paese.

Mostra tutto

Nelle vicinanze

Trasporto pubblico Trasporto pubblico
La Cassa (P.za 25 Aprile)
La Cassa (P.za 25 Aprile)
2,9 Km
La Cassa (Ribolzi)
La Cassa (Ribolzi)
3,0 Km
Ricariche auto elettriche Ricariche auto elettriche
Municipio di Givoletto | EnelX
130 m
Givoletto Via Torino | EnelX
2,1 Km
Scuole Scuole
Scuola Elementare
220 m
Scuole
2,9 Km
Farmacia Farmacia
Farmacia Dottor Gallo
160 m
Farmacia
2,7 Km
Supermercati Supermercati
Despar
280 m
Bar Bar
Bellini
140 m
Ristoranti Ristoranti
Ristorante dei Cacciatori
110 m
La Vecchia Lira
230 m
La Coccinellla
860 m
Campana
2,2 Km
Il Ritrovo
2,7 Km
Mostra tutto

Caratteristiche

Rif.:
61170507
Piano:
1 di 2 con ascensore (Piano su più livelli)
Box:
1
Posti auto:
1
Balconi:
1
Terrazzi:
3
Mostra tutto
Prezzo Prezzo
€ 339.000
Rata mutuo Rata mutuo
€ 1.598 / mese
Spese annue Spese annue
€ 1.200
Proponi il tuo prezzoProponi il tuo prezzo

Classe Energetica

B
B
B
B
B
B
B
B
B
EP globale non rinnovabile:
213.15 kW h/m² anno
EP globale rinnovabile:
156.56 kW h/m² anno
EP invernale del fabbricato:
EP estiva del fabbricato:
Anno di costruzione:
2015
Riscaldamento:
Autonomo
Tipo impianto:
A pavimento
Tipo alimentazione:
Metano

Prezzo ridotto di €1 (3%%)

Ti interessa visionare l'immobile?

Fissa un appuntamento  Fissa un appuntamento

Richiedi informazioni

Clicca su Leggi per aprire l'informativa
* Questi campi sono obbligatori

Calcola il tuo mutuo

Semplice e senza impegno
Anticipo

( % )
Mutuo

( % )

pochi semplici passi

inserisci i tuoi dati
Questionario completato
Grazie per aver richiesto un appuntamento senza impegno con un nostro Consulente del Credito e Assicurativo.

Hai inserito correttamente tutti i dati necessari e a breve riceverai una e-mail con un link da convalidare per inviare i tuoi dati.
Affiliato
Immobiliare Givoletto Sas
Via Torino, 4 10040 Givoletto (TO)

Il nostro staff


  • Anthony Molluso
    Affiliato

  • Giuseppe Bologna
    Responsabile

  • Giulia Saracino
    Coordinatrice
Via Torino, 4 10040 Givoletto (TO)
Zona: Givoletto-Val Della Torre-Caselette-La Cassa
Mostra su mappa
Orari: LUN.-VEN. 09.00-12.30/15.00-20.00 SABATO 09.00-12.30/15.00-19.00 DOMENICA CHIUSO
Affiliato
Immobiliare Givoletto Sas
Via Torino, 4 10040 Givoletto (TO)

2026 Tecnocasa Franchising S.p.A. - P. IVA 08365160152 - Via Monte Bianco 60/A 20089 Rozzano (MI). Ogni agenzia ha un proprio titolare ed è autonoma. Privacy policy | Policy utilizzo | Cookie policy